Residential and Commercial Property in Nottingham
Development
Canning Circus
We are revitalising the historic Ropewalk on Derby Road, Nottingham. Once derelict, these landmarks are being transformed into luxury apartments that blend modern style with the city's rich heritage.
The redevelopment, designed by ARC, offers high-end finishes, contemporary interiors, and vibrant commercial spaces, creating a unique urban living experience.
FOR RENTAL
Garage Storage Units
Are you in search of the perfect space to securely store your vehicle or belongings? Look no further! Our secure garages are located just a short walk from Nottingham town centre on Derby Road.
Each garage is equipped with electrical outlets, providing you with the power you need, and for the convenient and secure remote-controlled door openers.
Contact Us
Feel free to reach out to our friendly team
Whether you have a question about our property portfolio, want to discuss a potential business opportunity, or simply want to connect regarding our residential and commercial properties, we'd love to hear from you.At Tarry Holdings, we pride ourselves on building strong relationships with our clients and partners. We look forward to working with you!
On 30th september 2025 Allsop Auctions
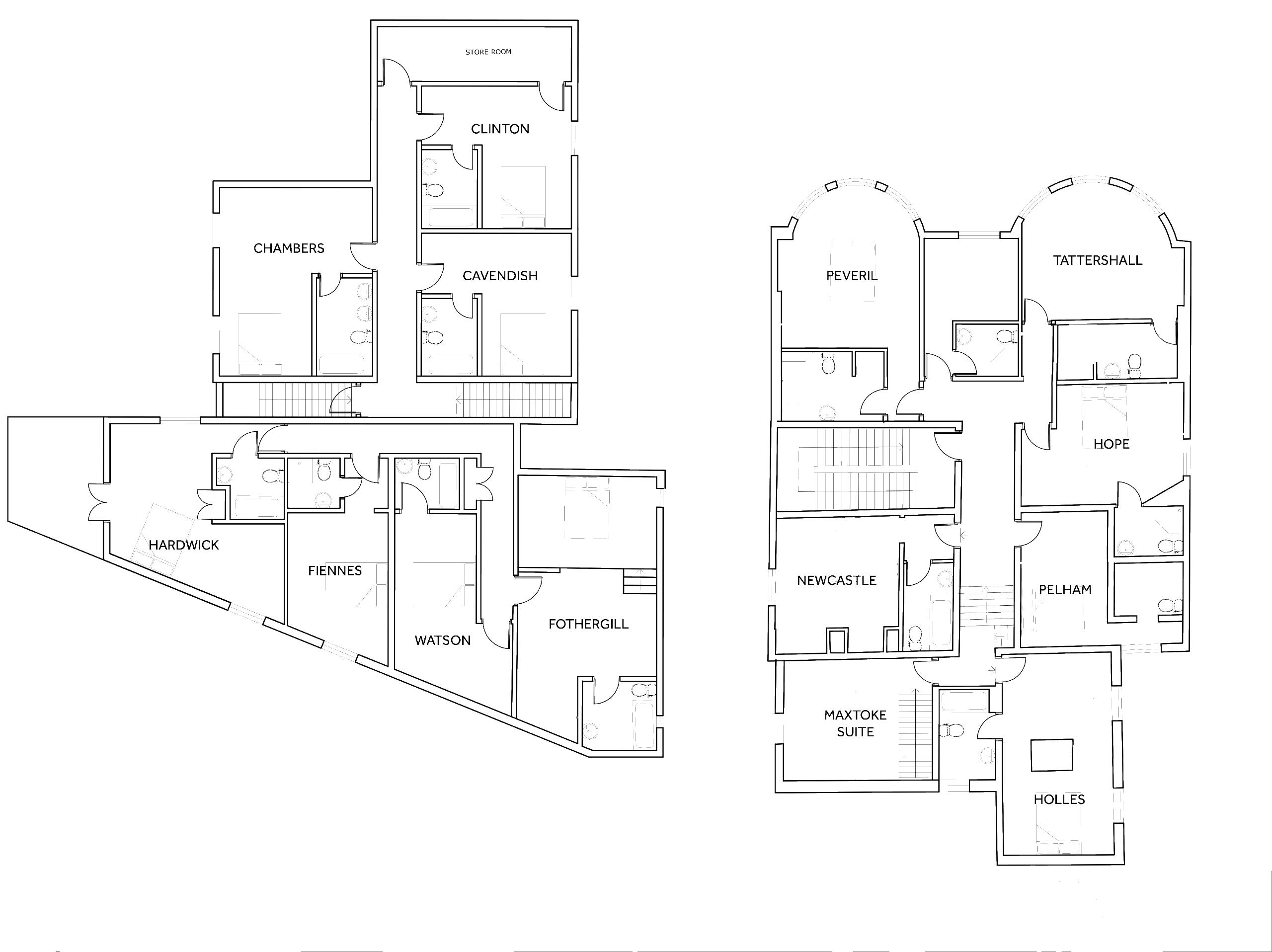
A Historic Gem in Nottingham
On the 30th of September 2025, Allsop Property Auctions will be presenting a rare opportunity to acquire The Walton Hotel; a uniquely designed boutique hotel located in the prestigious Park Estate of Nottingham. Situated in the heart of Nottingham city centre, this property offers the perfect blend of city convenience with the atmosphere of English countryside charm.
As a Grade II listed building and the original shooting lodge to the Nottingham Castle, The Walton Hotel boasts a rich history dating back to the 1800's when The Park Estate was once a deer park. Since February 2014, the current owners have meticulously refurbished the property to create an atmosphere that evokes the heart of the English countryside while being conveniently located in a bustling city centre.

Key Features
✓ Established boutique hotel with strong local reputation
✓ Prime location in Nottingham's prestigious Park Estate, close to the town centre
✓ Multiple uniquely styled guest rooms with individual character
✓ Large south-facing terrace for outdoor dining and events
✓ Grade II listed historic building with unique architectural character
✓ Previous partnerships with Royal Theatre Nottingham with track record of hosting high-profile clientele
✓ A history of annual signature events with an established following
✓ Recently refurbished to preserve historical charm while offering modern amenities



Property Overview
The Walton Hotel presents an exceptional hospitality concept celebrating quintessential English heritage and charm. This distinctive property boasts authentic period features including original open fireplaces and carefully curated antique furnishings, creating an atmosphere of refined comfort that resonates with discerning guests.
The in-house dining establishment has built its reputation on traditional English cuisine prepared with fresh, locally-sourced ingredients by skilled culinary staff. This sale offers a rare opportunity to acquire an established hospitality business with documented success, housed within a property of historical significance and architectural distinction in one of Nottingham's most coveted and prestigious neighbourhoods.

Location

Basement, Garages & Gatehouse

Ground Floor

First Floor
